Ca. 92 m² große Erdgeschosswohnung mit Tageslichtbad und großer Terrasse in Nachrodt-Wiblingwerde
-
Diese modern ausgestattete Eigentumswohnung befindet sich in einem gepflegten 6-Familienhaus in Nachrodt-Wiblingwerde.
Schon beim Ankommen profitieren Sie von einem eigenen PKW-Stellplatz direkt vor dem Haus. Über die Außentreppe gelangen Sie in ein gepflegtes Treppenhaus und weiter in die Wohnung im Erdgeschoss.
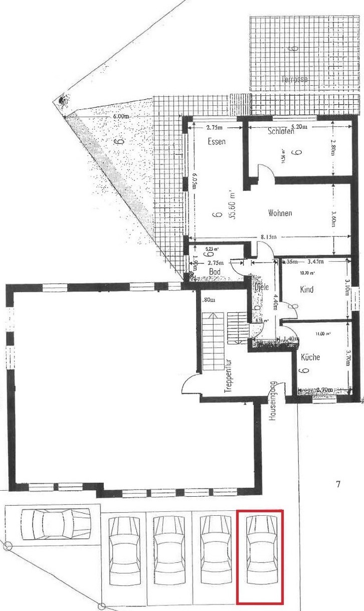
Mitte der 90er Jahre wurde die Wohnung kernsaniert und durch einen Anbau erweitert. Die Wohnung bietet rund 92 m² Wohnfläche, die sich auf zwei Schlafzimmer, eine großzügige Küche, ein modernes Tageslichtbad mit Walk-in-Dusche sowie einen großzügigen Wohn-/ und Essbereich verteilen.
Absolutes Herzstück der Wohnung ist der ca. 34 m² große Wohn-/ und Essbereich, der sich dank einer großzügigen bodentiefen Fensterfront zur ca. 50 m2 großen Terrasse hin öffnet.
Die nach Süd-Osten ausgerichtete Terrasse erstreckt sich über zwei Ebenen und bietet dank umlaufender Hecke viel Privatsphäre.
Für ein stilvolles Wohnambiente sorgt der durchgehend verlegte, hellgrau marmorierte Marmorboden, der Kombination mit der Fußbodenheizung zudem für eine moderne Wohnqualität sorgt. Durch die großen Fensterflächen gelangt viel Tageslicht in die Räume, wodurch eine freundliche und offene Wohnatmosphäre entsteht.
Diese Wohnung ist ein ideales Zuhause für Paare, kleine Familien oder alle, die Wert auf Großzügigkeit, Helligkeit und eine großzügige Terrasse legen. -
Flächen
- Wohnfläche: 92,25 m²
- Wohneinheiten: 6
- Zimmer insgesamt: 3
- Schlafzimmer: 2
- Badezimmer: 1
- Etagen: 3
- Stellplätze: 1
- Stellplatzart: Freiplatz
- Außenstellplätze: 1
- Terrassen: 2
Zustand & Erschließung
- Baujahr: 1911
- Zustand: gepflegt
- Keller: voll unterkellert
Sonstiges
Der Energieausweis wird den Interessenten bei der Besichtigung vorgelegt und in Kopie übergeben.
Energieausweis: Bedarfsausweis gültig von: 18.03.2025
Endenergiebedarf Wärme: 257.7 kWh/(m²a) Energieeffizienzklasse: H
Baujahr: 1911- Immobilie ist verfügbar ab: sofort
-
Etagenlage: Erdgeschoss (Hochparterre)
Wohnungstür: Holz mit Glaseinsatz
Gegensprechanlage: Vorhanden
Wohnungsinnentüren/-zargen: Holz, weiß, Glastüren in der Küche, einem Schlafzimmer sowie Wohn-/Esszimmer
Fenster: Isolierverglaste Kunststofffenster, Baujahr 1981, bodentiefe isolierverglaste Holzfenster, 1990
Fenstersicherung: Rollläden, elektrisch bedienbar, überwiegend mit abschließbaren Fenstergriffen
Bodenbeläge: Durchgehend hellgrau marmorierter Marmorboden
Badezimmer: Tageslichtbad mit Walk- In Dusche, Hänge-WC und modernem Waschtisch
Terrasse: Ca. 50 m² große Terrasse, aufgeteilt auf zwei Ebenen mit Süd- Ostausrichtung, Strom-/ und Wasseranschluss vorhanden
Heizungsart: Gaszentralheizung mit Brennwerttechnik, Baujahr 2013, Wohnung verfügt über eine Fußbodenheizung
Warmwasser: Im Badezimmer elektronischer Durchlauferhitzer bzw. Untertischgerät in der Küche
Elektrik: Kippsicherungen und FI- Schutzschalter
Wasseruhren: Vorhanden
Keller: Eigener Kellerraum sowie Anschlussmöglichkeit für Waschmaschine und Trockner
Garage /Stellplatz: Außenstellplatz direkt vor dem Haus, im Kaufpreis enthalten
Hausgeldvorauszahlung: 230 EUR/ Monat, darin enthalten sind die Kosten für: Wasser-/ Abwassergebühren, Niederschlagswasser, Allgemeinstrom, Kabel-TV, Versicherungen, Müll, städt. Straßenreinigung und Winterdienst, Treppenhausreinigung, Aufzug, Rücklagen, Verwaltung, Bankgebühren zzgl. Heizkosten
Rücklage: 4.930 EUR (Stand 31.12.2024)
Grundbesitzabgaben: 175,25 EUR/ Jahr- Art der Ausstattung: Standard
- Heizungsart: Fußbodenheizung
- Befeuerung: Gas
- Bodenbelag: Marmor
- Badausstattung: Dusche, Fenster
-
- Energieausweis-Art: Bedarf
- Energieausweis gültig bis: 17.03.2035
- Endenergiebedarf: 257,70 kWh/(m²*a)
- Energieeffizienzklasse: H
- Baujahr (Energieausweis): 1911
- Energieausweis-Ausstellungsdatum: 18.03.2025
- Energieausweis-Jahrgang: ab Mai 2014
- Energieausweis-Gebäudeart: Wohngebäude
- Primärenergieträger: Gas
-
Nachrodt-Wiblingwerde
ist eine Gemeinde im Märkischen Kreis und liegt im idyllischen Lennetal zwischen den Städten Altena, Iserlohn und Hagen. Sie setzt sich aus den beiden Ortsteilen Nachrodt im Tal und Wiblingwerde auf der Höhe zusammen, die jeweils ihren eigenen Charakter haben: Während Nachrodt stärker vom Tal der Lenne, Gewerbe und Verkehr geprägt ist, besticht Wiblingwerde durch seine ländliche, dörfliche Struktur mit viel Grün und Weitblicken ins Sauerland.
Nachrodt-Wiblingwerde verfügt direkt im Ort über eine für den alltäglichen Bedarf ausreichende Infrastruktur, die auch den Bedürfnissen von Familien gerecht wird. Für die Kleinsten stehen mehrere Kindergärten und Kindertagesstätten, im schulischen Bereich eine Grundschulen mit offenem Ganztagsangebot zur Verfügung. Für ältere Schülerinnen und Schüler besteht die Möglichkeit, die Sekundarschule Altena/Nachrodt-Wiblingwerde zu besuchen. Weitere weiterführende Schulen gibt es in Altena oder Iserlohn.
Auch die medizinische Versorgung ist vor Ort gewährleistet: Hausärztliche Praxen stehen in der Gemeinde zur Verfügung, ebenso die Lenne-Apotheke in der Ortsmitte.
Die Verkehrsanbindung von Nachrodt-Wiblingwerde ist günstig. Über die A46 erreicht man sowohl Hagen als auch Iserlohn in wenigen Minuten, und auch die Anbindung an die A45 ist schnell gegeben, Besonders die Ortsteile um Wiblingwerde profitieren von der Auffahrt Lüdenscheid-Nord, die etwa zehn Autominuten entfernt liegt. So lassen sich größere Städte innerhalb von 20 bis 30 Minuten erreichen.
Gleichzeitig ist die Gemeinde von ausgedehnten Wäldern, Wanderwegen und Naturschutzgebieten umgeben, was sie auch für Erholungssuchende attraktiv macht.
Insgesamt verbindet Nachrodt-Wiblingwerde die Ruhe einer ländlichen Umgebung mit einer guten Grundversorgung und Nähe zu größeren Städten ein Ort, der besonders für Familien und Naturliebhaber attraktiv ist. -
- Kaufpreis: 125.000 €
- Hausgeld: 230 €
- Käuferprovision: 3.57 %
Grundrisse























