Helle, Barrierefreie 5 Zimmer Wohnung
-
Großzügiges Wohnen mit Komfort & Charme – frisch renoviert in ruhiger Lage.
Diese außergewöhnlich großzügige Wohnung mit ca. 200 m² Wohnfläche befindet sich in einem gepflegten Dreifamilienhaus aus dem Jahr 1957, das im Jahr 2026 umfassend und hochwertig renoviert wurde. Das Ergebnis: ein modernes Wohnambiente, das stilvoll mit dem Charme des Bestands harmoniert.
Die Wohnung liegt im Erdgeschoss und überzeugt durch einen barrierearmen sowie seniorengerechten Zugang – ideal für unterschiedlichste Lebenssituationen.
Raumangebot zum Wohlfühlen
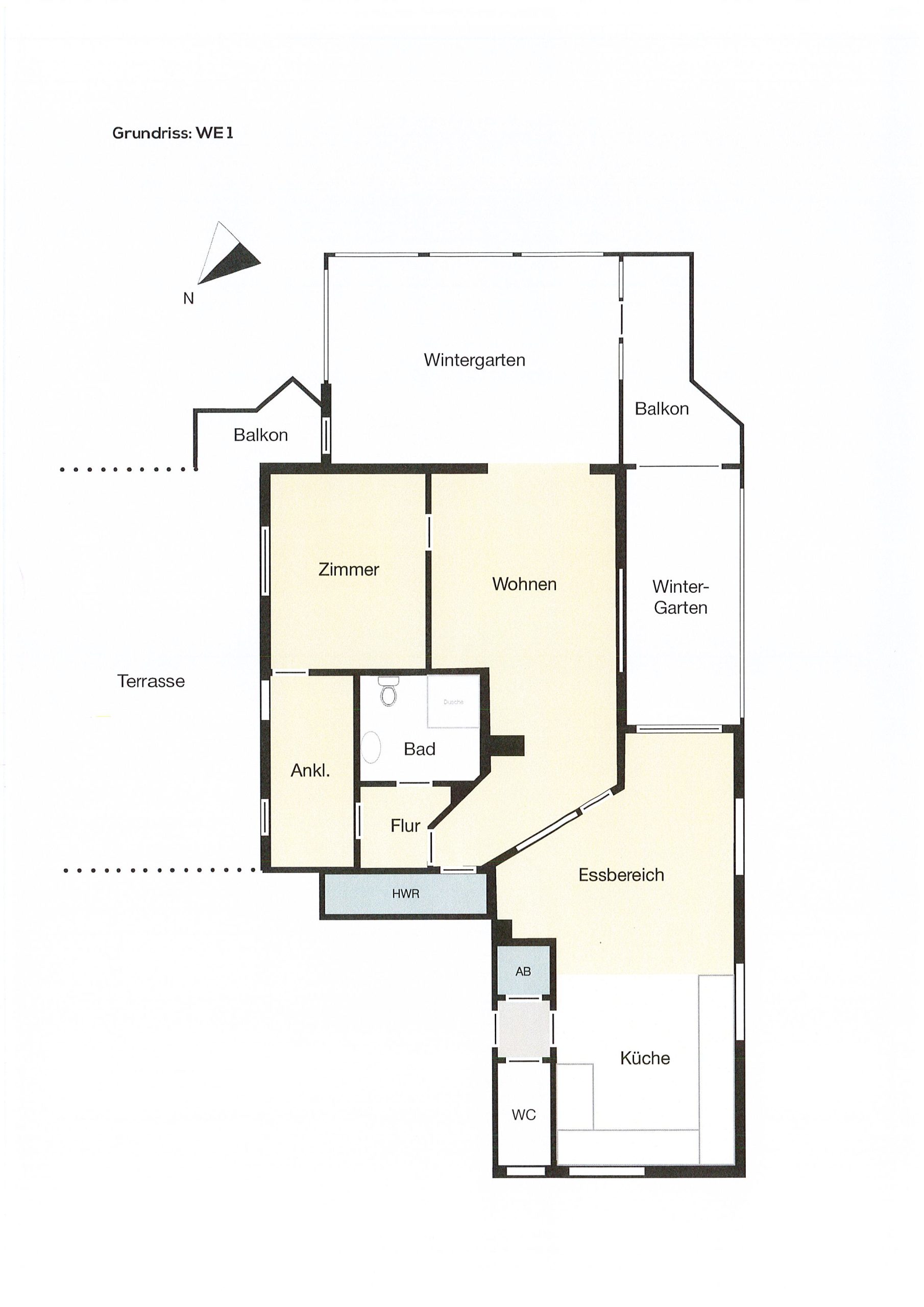
Mit insgesamt 5 Zimmern, darunter 2 gemütliche Schlafzimmer, bietet die Wohnung viel Platz für individuelle Wohnkonzepte – ob für Paare, Familien oder alle, die großzügiges Wohnen schätzen. Ebenfalls bietet die Wohnung die Möglichkeit für Wohnen und Arbeiten unter einem Dach.
Das Herzstück bildet der helle Wohnbereich mit Kamin, der für eine besonders behagliche Atmosphäre sorgt. Große Fensterflächen durchfluten die Räume mit Tageslicht und schaffen ein angenehmes Wohngefühl. -
Flächen
- Wohnfläche: 200 m²
- Zimmer insgesamt: 5
- Schlafzimmer: 2
- Badezimmer: 1
- Separate WCs: 1
- Etagen: 2
- Etage: 1
- Stellplatzart: Freiplatz
- Außenstellplätze: 2
- Balkone: 2
Zustand & Erschließung
- Zustand: vollsaniert
- Letzte Modernisierung: 2026
Sonstiges
Wir beantworten jede Anfrage per Email. Bitte überprüfen Sie auch Ihren Spam-Ordner.- Immobilie ist verfügbar ab: Nach Vereinbarung, ab sofort möglich.
-
Ausstattung, die überzeugt!
Moderne Einbauküche bereits vorhanden
Stilvolles Badezimmer mit hochwertiger Dusche
Zusätzliches Gäste-WC
Zwei Balkone mit schönem Ausblick
Pflegeleichte und langlebige Fliesenböden
Rollläden für optimalen Sonnen- und Sichtschutz
Gehoben ausgestattetes Wohnambiente
Gartennutzung
Die Beheizung erfolgt über eine zuverlässige Öl-Zentralheizung, die für angenehme Wärme sorgt.Außenbereich & Parkmöglichkeiten
Drei PKW-Stellplätze stehen direkt am Haus zur Verfügung und bieten komfortables Parken. Der gemeinschaftlich nutzbare Garten lädt zum Entspannen, Verweilen oder geselligen Beisammensein im Freien ein.Zusätzliche Informationen
Die Immobilie überzeugt zudem durch ihre solide Energieeffizienzklasse D. Dank der umfassenden Renovierung im Jahr 2026 genießen Sie hier ein rundum modernes und komfortables Zuhause.Fazit
Ein attraktives Wohnangebot für alle, die Großzügigkeit, Komfort und ein stilvolles Zuhause zu schätzen wissen – geeignet für Familien, Paare oder auch Senioren.- Befeuerung: Öl
- Bodenbelag: Fliesen
- Badausstattung: Dusche
- Küche: Einbauküche
-
- Energieausweis-Art: Verbrauch
- Energieausweis gültig bis: 28.09.2034
- Energieverbrauchskennwert: 116,00 kWh/(m²*a)
- Energieeffizienzklasse: D
- Energieausweis-Ausstellungsdatum: 29.09.2024
- Energieausweis-Jahrgang: ab Mai 2014
- Energieausweis-Gebäudeart: Wohngebäude
- Primärenergieträger: Öl
-
Lage – Ruhig, grün und dennoch bestens angebunden
Die Wohnung befindet sich in attraktiver Lage von Engelskirchen-Schnellenbach und überzeugt durch eine angenehm ruhige, naturnahe Umgebung. Geprägt von viel Grün und einer entspannten Wohnatmosphäre, bietet das Umfeld ideale Voraussetzungen für alle, die Erholung im Alltag schätzen.
Gleichzeitig profitieren Sie von einer guten Infrastruktur: Einkaufsmöglichkeiten, Schulen, Ärzte sowie Einrichtungen des täglichen Bedarfs sind bequem in wenigen Minuten erreichbar und sorgen für ein rundum komfortables Wohnen.
Engelskirchen – Lebensqualität im Grünen
Engelskirchen gilt als charmante Gemeinde im Oberbergischen Kreis und begeistert durch ihre idyllische Lage sowie die Nähe zu den Metropolregionen Köln und Bonn. Dank der guten Verkehrsanbindung lassen sich die umliegenden Städte sowohl mit dem Auto als auch mit öffentlichen Verkehrsmitteln schnell erreichen – ideal für Berufspendler.
Freizeit & Natur direkt vor der Haustür
Die Region ist bekannt für ihre malerische Landschaft mit weitläufigen Wäldern, Hügeln und zahlreichen Freizeitmöglichkeiten. Ob ausgedehnte Spaziergänge, Fahrradtouren oder sportliche Aktivitäten in der Natur – hier kommen Erholungssuchende und Naturliebhaber voll auf ihre Kosten.
Zudem bietet Engelskirchen ein vielfältiges Angebot an Restaurants, Cafés und kulturellen Veranstaltungen, die das Leben vor Ort zusätzlich bereichern.
-
- Kaltmiete: 1.850 €
- monatl. Betriebs-/Nebenkosten: 450 €
- Heizkosten in Warmmiete enthalten: ja
- Kaution: 3700
Grundrisse


















































