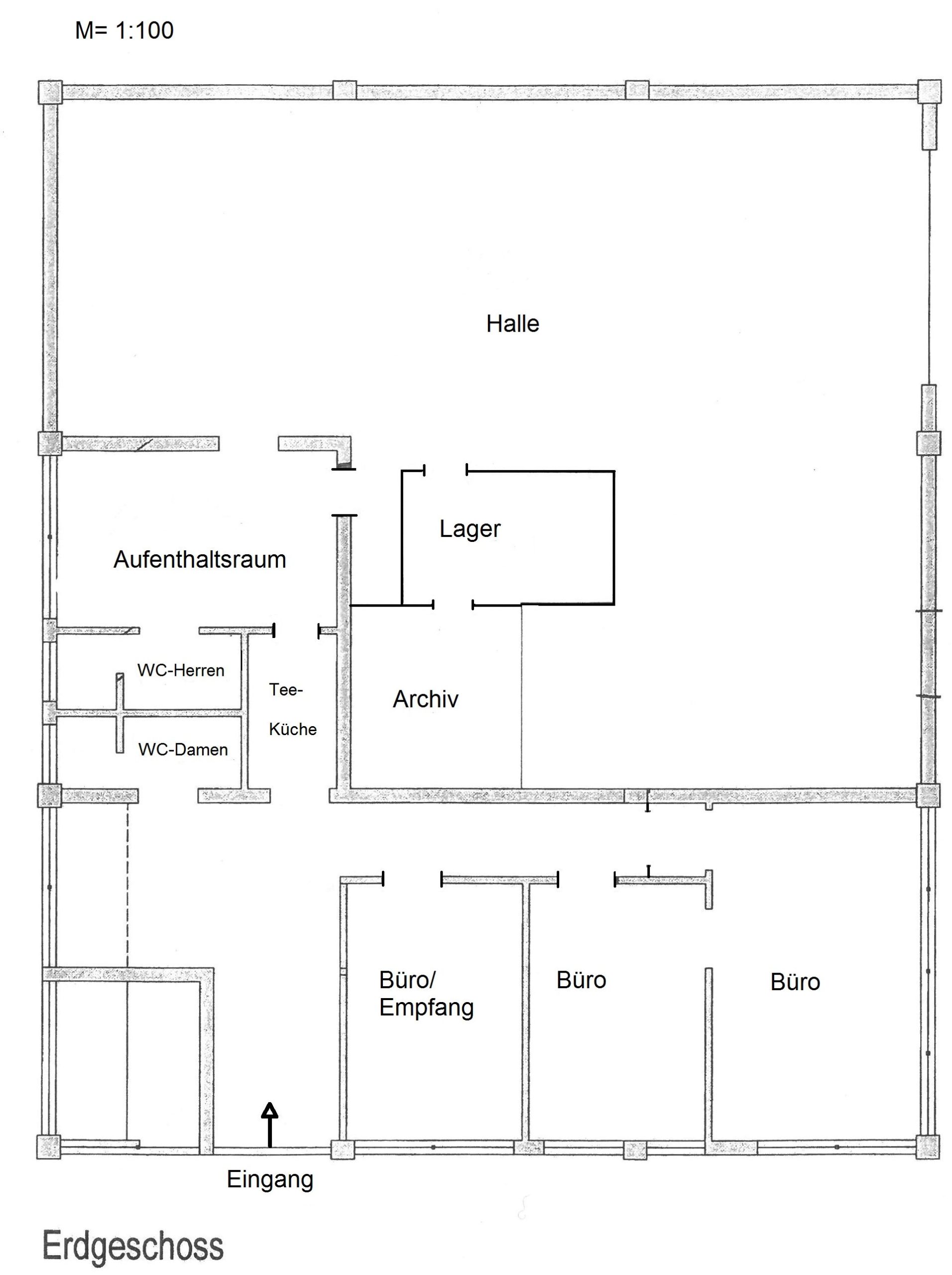
Zum Verkauf steht eine vielseitig nutzbare Gewerbeimmobilie auf einem ca. 2.210 m² großen Grundstück. Das Objekt umfasst eine geräumige Lagerhalle ca. 150m², flexible Büroräume ca. 135 m² sowie eine separate Einliegerwohnung. Die Immobilie bietet eine attraktive Kombination aus Lager-, Büro- und Wohnfläche und ist somit ideal für verschiedene gewerbliche Nutzungen geeignet.
Die Stellfläche und die Einliegerwohnung sind derzeit vermietet. Die Büroräume sowie die Lagerhalle stehen zur freien Verfügung und können vom neuen Eigentümer selbst genutzt oder ebenfalls vermietet werden.
Die Gesamtmieteinnahmen bei Vollvermietung belaufen sich auf 25.920 EUR netto pro Jahr.