Noble 130m² Maisonette mit Dachterrasse in bester Lage von Unterfeldhaus
-
Die Wohnung wurde seit der damaligen Fertigstellung von den Eigentümern selbst bewohnt und liebevoll ausgestattet und gepflegt.
Sie verwöhnt mit großzügigem Zuschnitt und bietet
-einen sehr attraktiven Wohn-/Essraum mit Loggia
-Kamin auf der Galerie
-2 Schlaf- bzw. Arbeitszimmer, davon 1 mit Loggia
-1 Wannenbad mit WC
-1 Duschbad mit WC
+ eine wunderschön angelegte Dachterrasse mitsamt Sonnenschutz!
Feste Einbauten sind im Kaufpreis enthalten.
Die Wohnung hat geschmacksabhängigen Renovierungsbedarf.
Zur Wohnung gehört ein Kellerraum. Den Hausbewohnern stehen gemeinsam Räume zur Wäschepflege zur Verfügung sowie ein Fahradabstellraum in der
Tiefgarage. Hier kann optional ein KFZ-Stellplatz angemietet werden. -
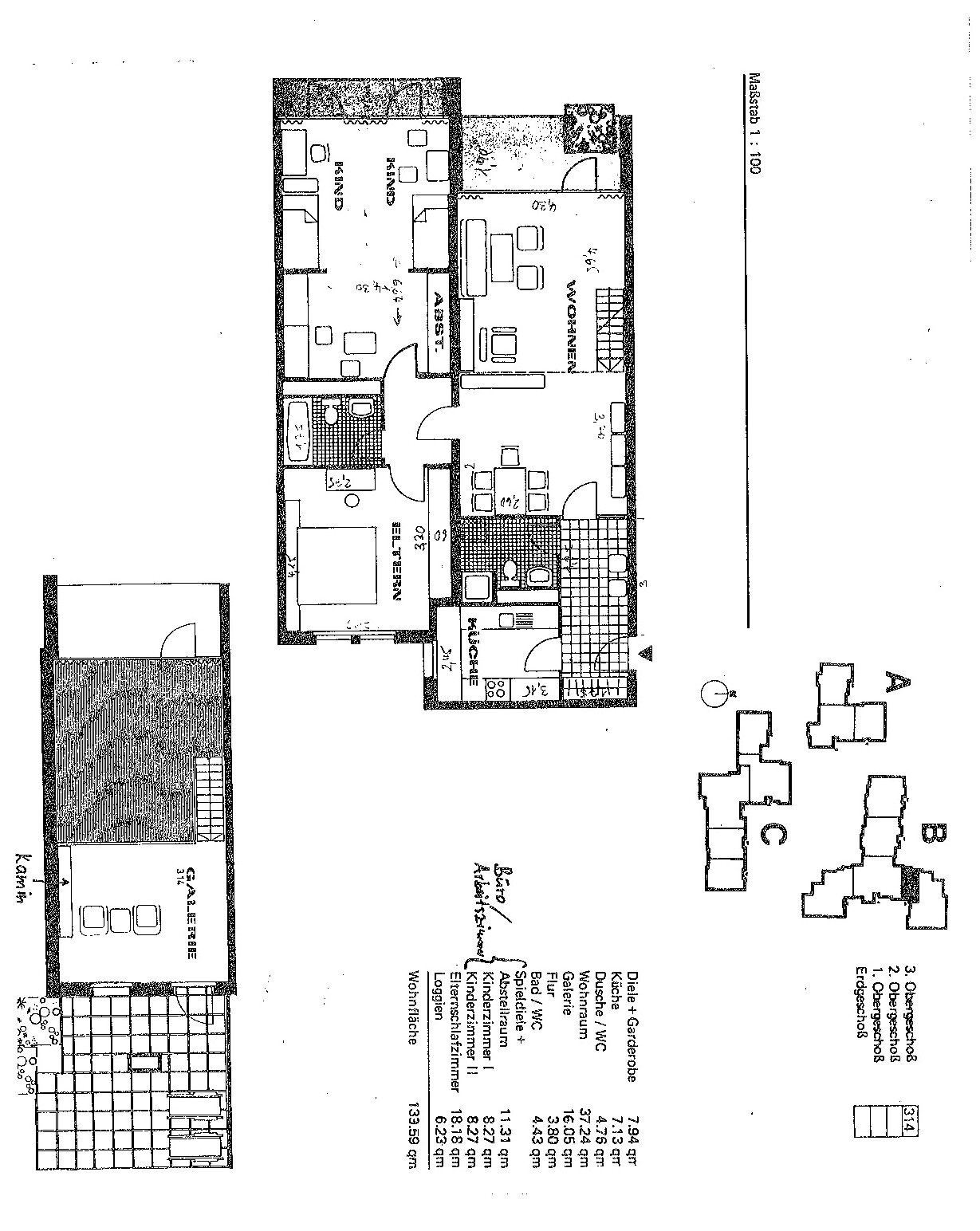
Flächen
- Wohnfläche: 132 m²
- Zimmer insgesamt: 3
- Schlafzimmer: 2
- Etagen: 4
- Etage: 3
- Terrassen: 1
Zustand & Erschließung
- Baujahr: 1975
- Zustand: nach Vereinbarung
- Keller: voll unterkellert
Sonstiges
Energieausweis: Verbrauchsausweis gültig von: 15.09.2019
Endenergieverbrauch Wärme: 184 kWh/(m²a) Wesentliche Energieträger Heizung: Befeuerung Erdgas leicht
Energieeffizienzklasse: F
Baujahr: 1975- Immobilie ist verfügbar ab: nach Absprache
-
- Heizungsart: Zentralheizung
- Befeuerung: Gas
- Küche: Einbauküche
-
- Energieausweis-Art: Verbrauch
- Energieausweis gültig bis: 14.09.2029
- Energieverbrauchskennwert: 184 kWh/(m²*a)
- Energieeffizienzklasse: F
- Baujahr (Energieausweis): 1975
- Energieausweis-Ausstellungsdatum: 15.09.2019
- Energieausweis-Jahrgang: ab Mai 2014
- Energieausweis-Gebäudeart: Wohngebäude
- Primärenergieträger: Gas
-
Schöner-Wohnen-Quartier in Erkrath-Unterfeldhaus!
Das in Mitte der 1970er bis in 1980er Jahre errichtete Wohnquartier ist mit seiner zeitlos schönen Architektur auf parkartig angelegtem Grundstück bis heute eine der schönsten Wohnlagen im Südosten von Düsseldorf.
Erkrath-Unterfeldhaus bietet seinen Bewohnern eine erstklassige Infrastruktur.
Der bestens sortierte Einzelhandel und Dienstleister aller Art finden Sie im nur wenige hundert Meter entfernten Stadtteilzentrum Neuenhausplatz.Düsseldorf, Essen, Köln, Wuppertal sind direkt über die BABs sehr schnell zu erreichen.
Zur Erholung laden der nahegelegene Unterbacher See ein und natürlich das Neandertal und das Bergische Land.Willkommen in Erkrath-Unterfeldhaus!
-
- Kaufpreis: 435.000 €
- Hausgeld: 693 €
- Käuferprovision: 3.57 %
Grundrisse










