Attraktive Loftwohnung in der Nähe vom Bunten Garten mit Einbauküche, Balkon und PKW-Stellplatz
-
Großzügig und zentral wohnen im Quartier van Laack:
Das ehemalige Fabrikgebäude wurde unter Denkmalschutz gestellt und bis 2014 aufwendig saniert und in moderne Komfortwohnungen umgewandelt.
Zur Vermietung steht eine moderne Loftwohnung, ideal als Singlewohnung, in einem geschmackvoll umgestalteten Wohnhaus. Der repräsentative Hauseingangsbereich ist mit Naturstein gestaltet und ein echter Blickfang.
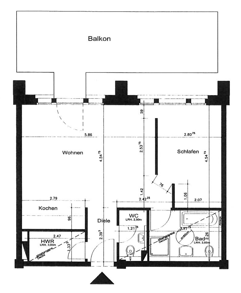
Die Wohnung ist per Aufzug erreichbar. Mit ihren ca. 70 m² bietet sie einen großzügigen Wohn- und Essbereich, mit integrierter Einbauküche und einem Zugang zu einer großen Terrasse. Ein modernes Bad mit bodengleicher Dusche plus einer bequemen Wanne, zusätzlicher Elektro-Handtuchheizung , ein separates Gäste- WC, sowie ein Hauswirtschaftsraum vervollständigen die Wohnung.
Die hohen Decken, eine große Glasfront zum Balkon und Parkettböden mit Fußbodenheizung belegen eine insgesamt gehobene Ausstattung und schaffen eine angenehme Wohnatmosphäre.
Zur Wohnung gehören ein Kellerraum und ein allgemeiner Trockenraum. Im Haus ist Highspeed-Internet (5G/Glasfaser) technisch verfügbar.
Außerhalb des Hauses befindet sich auf dem Gelände ein PKW-Stellplatz. Die Kosten belaufen sich auf 50,- € pro Monat.
Treppenhausreinigungskosten und Heizungskosten sind in den Nebenkosten enthalten. -
Flächen
- Wohnfläche: 70 m²
- Zimmer insgesamt: 1,5
- Schlafzimmer: 1
- Badezimmer: 1
- Etage: 2
- Stellplatzart: Freiplatz
- Außenstellplätze: 1
- Balkone: 1
Zustand & Erschließung
- Baujahr: 1910
- Letzte Modernisierung: 2014
- Keller: voll unterkellert
Sonstiges
Sie haben Interesse an einem ausführlichen Exposé mit weiteren Angaben und Plänen? – Bitte einfach das Kontaktformular vollständig mit Anschrift und Rufnummer ausfüllen – Sie erhalten dann umgehend das Online-Exposé mit ausführlichem PDF-Exposé im Downloads und Links Bereich per eMail zugesandt.- Immobilie ist verfügbar ab: 01.06.2026
- Denkmalschutz: ja
-
Die Ausstattung im Überblick:
+ Einbauküche
+ großer Balkon
+ Parkettboden
+ Fußbodenheizung
+ Bad mit Wanne und Dusche
+ Gäste-WC
+ doppeltverglaste Fenster
+ Hauswirtschaftsraum in der Wohnung
+ eigener Kellerraum
+ PKW-Stellplatz auf dem Gelände (50,- EUR/ Monat)- Heizungsart: Zentralheizung
- Befeuerung: Gas
- Bodenbelag: Parkett
- Küche: Einbauküche, Offene Küche
-
- Energieausweis-Art: Bedarf
- Energieausweis gültig bis: 11.02.2024
- Endenergiebedarf: 199 kWh/(m²*a)
- Baujahr (Energieausweis): 1910
- Energieausweis-Ausstellungsdatum: 12.02.2014
- Energieausweis-Jahrgang: ab Mai 2014
- Energieausweis-Gebäudeart: Wohngebäude
- Primärenergieträger: Gas
-
Zentrale Lage im Stadtteil Waldhausen, nur wenige Schritte von der Mönchengladbacher Innenstadt entfernt, an einer ruhigen Seitenstraße. Der Hauptbahnhof ist in 20 Minuten Fußweg zu erreichen; zum Stadtzentrum gelangen Sie zu Fuß in 5 Minuten. Die nächste Bushaltestelle ist ca. 2 Minuten entfernt. Gute Anbindungen an die BAB 52 und 61, vollständige Infrastruktur, Gastronomie, Banken und medizinische Einrichtungen im nahen Umfeld. Vielfältige Einkaufsmöglichkeiten in unmittelbarer Nähe.
-
- Kaltmiete: 895 €
- monatl. Betriebs-/Nebenkosten: 245 €
- Heizkosten in Warmmiete enthalten: ja
- Kaution: 2.685 €
- Außenstellplatzmiete: 50 €
Grundrisse
























