MFH mit 4 Einheiten - Südbalkone - 34.776 € Jahresmiete und 4% Rendite
-
Dieses gepflegte Mehrfamilienhaus aus dem Baujahr 1958 stellt eine interessante Investitionsmöglichkeit für Kapitalanleger dar. Auf einem ca. 165 m² großen Grundstück verteilen sich insgesamt vier in sich abgeschlossene Einheiten mit einer Gesamtfläche von ca. 279 m².
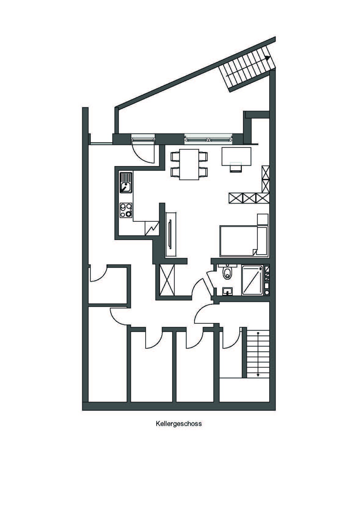
Wohnungsaufteilung & Zimmerstruktur:
Souterrain (ca. 34 m²): kompakte 1-Zimmer-Lösung zur individuellen Nutzung.
Erdgeschosswohnung (ca. 72 m²): großzügige 2-Zimmer-Wohnung mit funktionalem Grundriss.
1. Obergeschoss (ca. 72 m²): gut geschnittene 2-Zimmer-Wohnung.
Dachgeschoss & Spitzboden (zusammengelegt, ca. 100 m²): diese Einheit erstreckt sich über zwei Ebenen und bietet eine kombinierte Wohnlösung mit zusätzlichem Raumangebot.
Die Grundrisse zeigen überwiegend klassische, gut vermietbare Wohnungszuschnitte mit separaten Schlafzimmern, Wohn-/Essbereichen sowie kompakten Küchen- und Badlösungen.
Die Wohnungen in den oberen Bereichen verfügen über Balkone bzw. im Dachgeschoss über eine Dachterrasse mit Südausrichtung und bieten damit einen zusätzlichen Wohnwert sowie eine gute Vermietbarkeit.
Ertragsdaten:
Die aktuelle monatliche Kaltmiete beträgt 2.898 €, was jährlichen Mieteinnahmen von ca. 34.776 € entspricht und für eine stabile Einnahmesituation sorgt. Aufgrund der gefragten Wohnungsgrößen und der durchdachten Aufteilung besteht perspektivisch weiteres Mietsteigerungspotenzial im Rahmen der gesetzlichen Möglichkeiten. -
Flächen
- Wohnfläche: 279 m²
- Grundstücksfläche: 164 m²
- Vermietbare Fläche: 278 m²
- Wohneinheiten: 3
- Etagen: 3
- Balkone: 3
- Terrassen: 1
Zustand & Erschließung
- Baujahr: 1959
- Zustand: modernisiert
- Keller: voll unterkellert
Sonstiges
- zurzeit vermietet: ja
-
- Art der Ausstattung: Standard
- Befeuerung: Gas
-
- Energieausweis-Art: Bedarf
- Energieausweis gültig bis: 18.01.2032
- Endenergiebedarf: 93,40 kWh/(m²*a)
- Energieeffizienzklasse: C
- Baujahr (Energieausweis): 1958
- Energieausweis-Jahrgang: ab Mai 2014
- Energieausweis-Gebäudeart: Wohngebäude
- Primärenergieträger: Gas
-
Die Immobilie besticht durch ihre strategische Bestlage im Düsseldorfer Süden, unmittelbar im Einzugsgebiet der Heinrich-Heine-Universität und des Universitätsklinikums. Für Kapitalanleger garantiert diese Mikrolage durch den stetigen Bedarf an studentischem und medizinischem Wohnraum eine minimale Leerstandsquote und eine exzellente Vermietbarkeit.
Die Anbindung ist als erstklassig einzustufen: Mit direktem Zugang zur A46 und einem dichten Netz an ÖPNV-Verbindungen (U-Bahn/Bus) ist sowohl die Innenstadt als auch das Umland in wenigen Minuten erreichbar. Eine lückenlose Nahversorgung sowie die Nähe zum Südpark als wichtigstem Naherholungsgebiet der Region steigern die Attraktivität für Mieter zusätzlich. Insgesamt handelt es sich um ein wertstabiles Investment in einem dynamischen Umfeld, das durch seine infrastrukturelle Stärke langfristig sichere Renditen und Wertsteigerungspotenzial verspricht.
-
- Kaufpreis: 869.000 €
- Mieterprovision: 3,57% inkl. MwSt.
- X-fache (Kaufpreis bez. auf Jahresmiete): 24.99
- Aktuelle Mieteinnahmen pro Jahr: 34.776 €
Grundrisse













































