Moderne Kapitalanlage in attraktiver Lage nahe Oberpleis *provisionsfrei*
-
Dieses im Jahr 2000 errichtete Mehrfamilienhaus umfasst vier gut strukturierte Wohneinheiten mit insgesamt 291 m² Wohnfläche. Auf einem 960 m² großen Grundstück gelegen, bietet die Immobilie eine solide Grundlage für Kapitalanleger, die Wert auf langfristige Vermietbarkeit, funktionale Grundrisse und eine ruhige Wohnlage legen.
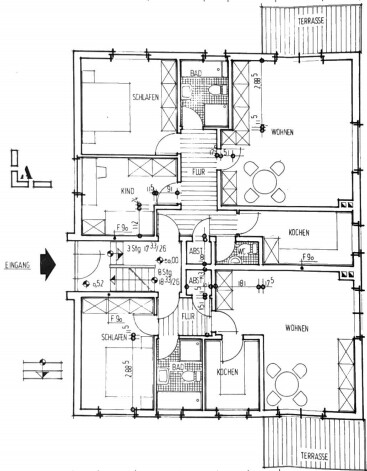
Die vier Wohnungen verfügen jeweils über drei bis vier Zimmer und sind mit Balkonen oder Terrassen ausgestattet, was den Wohnkomfort deutlich erhöht. Die funktionale Aufteilung der Einheiten trennt Wohn- und Schlafbereiche sinnvoll voneinander und schafft damit vielseitige Nutzungsmöglichkeiten für Familien, Paare oder Einzelpersonen. Große Fensterflächen sorgen für eine angenehme Belichtung und ein freundliches Wohngefühl.
Das Haus ist voll unterkellert und bietet mit ca. 144 m² Nutzfläche viel Raum für Abstellmöglichkeiten, Hauswirtschaft und Haustechnik. Die Öl-Zentralheizung gewährleistet eine zuverlässige Wärmeversorgung. Im Außenbereich stehen insgesamt sechs Stellplätze zur Verfügung, was die Vermietbarkeit zusätzlich stärkt.
Ein besonderes Highlight ist der großzügige Garten hinter dem Haus, der von den Bewohnern gemeinschaftlich genutzt werden kann und zusätzliche Aufenthaltsqualität bietet. Gleichzeitig eröffnet das Grundstück Potenzial für weitere Gestaltungs- oder Modernisierungsmaßnahmen – ein interessanter Aspekt für Investoren mit Blick auf zukünftige Wertentwicklung.
Die Wohnlage überzeugt durch ihre Nähe zu Feldern und Grünflächen, wodurch ein offenes, freundliches Umfeld entsteht. Einkaufsmöglichkeiten, öffentliche Verkehrsmittel und weitere Einrichtungen des täglichen Bedarfs sind gut erreichbar, was das Objekt für unterschiedlichste Mietergruppen attraktiv macht.
Ein Mehrfamilienhaus mit solider Bausubstanz, guter Aufteilung und interessanter Perspektive – ideal für Investoren, die eine langfristige und wertstabile Kapitalanlage suchen.
Die Kaltmiete beträgt jährlich 26.784,00 € -
Flächen
- Wohnfläche: 291,21 m²
- Grundstücksfläche: 960 m²
- Nutzfläche: 144 m²
- Vermietbare Fläche: 291,21 m²
- Wohneinheiten: 4
- Zimmer insgesamt: 11
- Badezimmer: 4
- Separate WCs: 2
- Etagen: 3
- Stellplätze: 6
- Außenstellplätze: 6
- Balkone: 2
- Terrassen: 2
Zustand & Erschließung
- Baujahr: 2000
- Zustand: gepflegt
- Bauweise: Massiv
- Keller: voll unterkellert
Sonstiges
- Immobilie ist verfügbar ab: sofort
- zurzeit vermietet: ja
-
Überzeugen Sie sich selbst:
+ Großes Grundstück
+ Ausreichend Stellplätze
+ Ruhige Wohnlage mit Blick ins Grüne
+ Vier eigenständige Wohneinheiten -> solide Vermietbarkeit
+ Jede Einheit mit Balkon oder Terrasse
+ Gutes Entwicklungspotential- Art der Ausstattung: Standard
- Heizungsart: Zentralheizung
- Befeuerung: Öl
-
- Energieausweis-Art: Verbrauch
- Energieausweis gültig bis: 27.11.2035
- Energieverbrauchskennwert: 67,26 kWh/(m²*a)
- Energieeffizienzklasse: B
- Baujahr (Energieausweis): 2000
- Energieausweis-Ausstellungsdatum: 28.11.2025
- Energieausweis-Jahrgang: ab Mai 2014
- Energieausweis-Gebäudeart: Wohngebäude
- Primärenergieträger: Öl
-
Die Immobilie befindet sich im Königswinterer Ortsteil Niederbuchholz, einer ruhigen Wohnlage mit dörflichem Charakter. Das Umfeld ist geprägt von Einfamilienhäusern, kleineren Wohngebäuden sowie landwirtschaftlichen Flächen, die für ein offenes und angenehmes Wohnumfeld sorgen.
Grundschule, Kindergarten, kleinere Einkaufsmöglichkeiten und tägliche Versorgungsangebote sind in den umliegenden Ortsteilen zeitnah erreichbar, ebenso wie weitere Dienstleistungen, Ärzte und größere Supermärkte in Oberpleis und Hennef.
Die verkehrliche Anbindung ist gut: Über die nahegelegene L268 und die Autobahn A3 bestehen schnelle Verbindungen in Richtung Siegburg, Bonn und Köln. Eine Busverbindung stellt zudem den Anschluss an das regionale Nahverkehrsnetz sicher.
Die Umgebung bietet zahlreiche Möglichkeiten für Spaziergänge und Freizeitaktivitäten im Grünen. Insgesamt handelt es sich um eine ruhige, gut angebundene Lage, die sowohl für Paare als auch Familien attraktiv ist.
-
- Kaufpreis: 645.000 €
Grundrisse













































